VERKAUFT - Machen Sie es zu Ihrem Projekt - Option auf Baugrundstück für ein Einfamilienhaus

25336 Elmshorn

Kaufpreis 245.000,00 €

Courtage 3,25 % inkl. MwSt.

Objekt

Sanierung oder Neubauprojekt – Die Antwort liegt bei Ihnen.

Das angebotene Einfamilienhaus aus den 60er-Jahren befindet sich in einem stark renovierungsbedürfti­gen Allgemeinzustand. Es handelt sich um ein Fertighaus, welches zur damaligen Zeit beispielsweise auch mit asbesthaltigen Stoffen errichtet worden ist. Fordern Sie diesbezüglich gerne die uns vorliegenden Unterlagen an.

Ein Abriss der Bestandsimmobilie ist definitiv eine Überlegung wert, um das großzügige Grundstück unter Einhaltung der Bebaubarkeit mit einem neuen Einfamilienhaus zu bebauen. Das Grundstück ist ca. 24 m breit und ca. 33 m tief. Das Grundstück befindet sich nicht im Geltungsbereich eines rechtskräftigen Bebauungsplans. Als Planungsstatus gilt daher der § 34 BauGB.

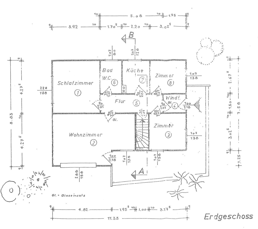
Das vorhandene Einfamilienhaus beherbergt aktuell vier Zimmer, den Küchenbereich und ein kleines Wannenbad. Zudem verfügt das Objekt über einen Teilkellerbereich (ca. 2,20 m Stehhöhe) mit Flur, zwei Abstellräumen und dem Heizungsraum, wo die Ölzentralheizung (Baujahr 2008) untergebracht ist. Vorherrschende Bodenbeläge sind Linoleum sowie Stäbchenparkett im Wohnzimmerbereich. Die doppelt verglasten Fenster sind mit Handlaufrollläden versehen.

Positiv Erwähnung finden muss das großzügige Grundstück mit seinen ca. 785 Quadratmetern, welches sich allerdings in einem sehr stark verwitterten Allgemeinzustand befindet.

Auf dem Grundstück befindet sich noch ein Carport sowie eine gemauerte Garage aus den 70er-Jahren, wo das Dach jedoch undicht ist.

Ein Energiebedarfsau­sweis ist in Bearbeitung, dürfte allerdings aufgrund des Allgemeinzustandes und der Tatsache, dass das Objekt entweder kernsaniert oder gänzlich abgerissen wird, nicht sonderlich aussagekräftig se­in.

Es liegt ein Immobiliengutachten von einem renommierten Sachverständi­genbüro vom 15.09.2025 vor. Auf Wunsch senden wir Ihnen das Gutachten gerne zu.

Vereinbaren Sie gerne einen unverbindlichen Besichtigungster­min. Wir freuen uns auf Ihre Kontaktaufnahme

Lage

Das Objekt befindest sich in einer kleinen Stichstraße ca. 1,5 Kilometer vom Elmshorner Stadtkern entfernt.

Ein Nahversorger ist fußläufig zu erreichen.

Die Umgebung ist geprägt von Einfamilien- und Doppelhausbebauung sowie einer Kleingartenanlage. Der nahe gelegene Deich lädt zu ausgiebigen Spaziergängen ein.

Diverse Bushaltestellen (Linien 489 und 6506) befinden sich in unmittelbarer Nähe. Den Autobahnzubringer erreichen Sie in ca. zehn Fahrminuten.

Daten Energieausweis

Baujahr

1966

Zustand

ABRISSOBJEKT

Wesentlicher Energieträger

OEL

Kontakt


Kürzlich verkauft

25337 Kölln-Reisiek

369.000 €
  • Grundstücksfläche977 m2
  • Wohn-Nutzfläche150 m2
  • Zimmer5

22459 Hamburg

898.000 €
  • Grundstücksfläche1517 m2
  • Wohn-Nutzfläche210 m2
  • Zimmer8

25370 Seester

425.000 €
  • Grundstücksfläche1122 m2
  • Wohn-Nutzfläche125.13 m2
  • Zimmer2