Mehrgenerationenwohnen? Arbeiten und Wohnen unter einem Dach? Teilvermietung? Es liegt an Ihnen!

25355 Barmstedt

Kaufpreis 599.000,00 €

Courtage 3,25 % inkl. MwSt.

Objekt

*** Entdecken Sie die Möglichkeiten! ***

Das von der renommierten Baufirma „massa haus“ errichtete Objekt wurde im Jahr 2010 in Holzständerbauweise auf einem Grundstück in grüner Umgebung errichtet und bietet diverse Nutzungsoptionen.

  • Mehrgeneratio­nenwohnen:

Das jugendliche Kind oder die (Groß-)Eltern in einer separaten Wohnung, aber dennoch unter dem selben Dach? Bei dieser Immobilie kein Problem!

  • Wohnen und Arbeiten:

Separate Büroräumlichkeiten? Möglich und umsetzbar! Eigener Küchenbereich und Sanitäranlagen inklusive.

  • Teilvermietung:

Mieteinnahmen generieren? Eigene Zähler vorhanden! Lassen Sie Ihr Eigenheim (zumindest teilweise) für sich arbeiten!

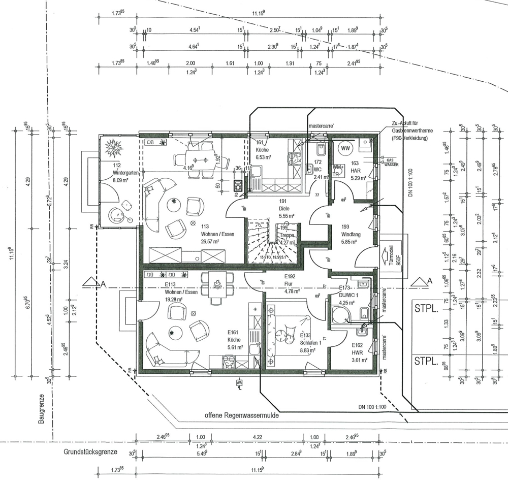
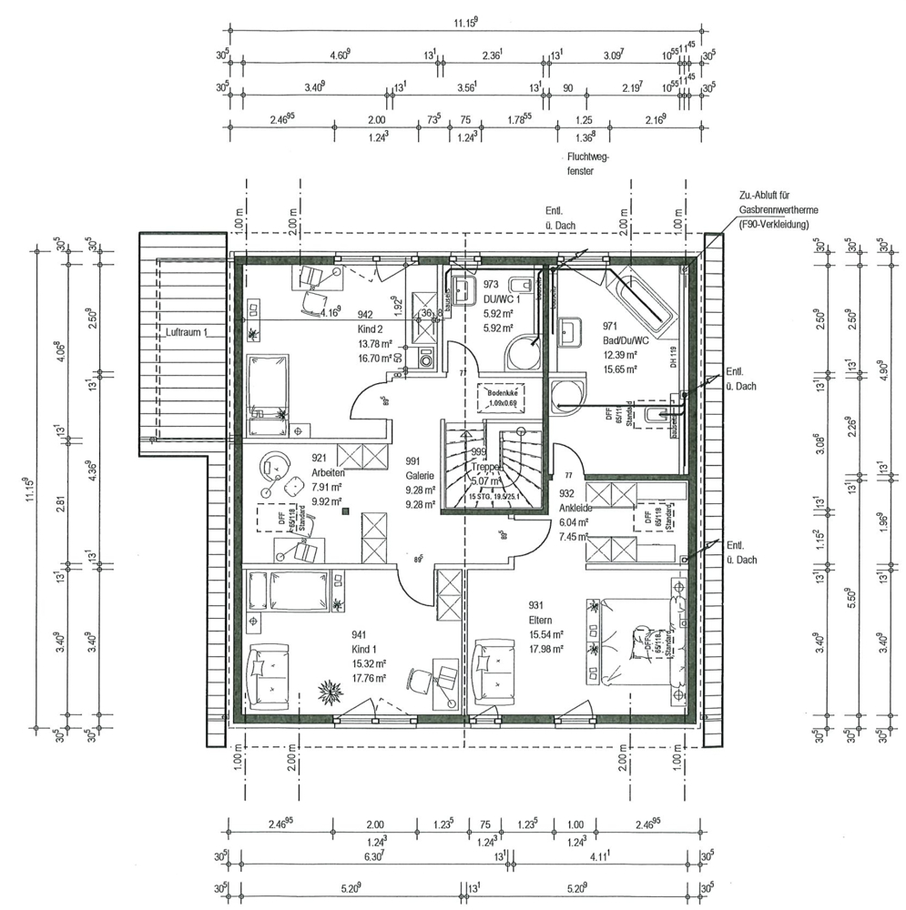
Die Hauptwohnung besticht durch ihren durchdachten Grundriss und erstreckt sich über das halbe Erd- sowie das komplette Obergeschoss. Vorherrschende Bodenbeläge sind Laminat und Fliesen. Badezimmer sind zu Genüge vorhanden. So befindet sich im Erdgeschoss ein Gäste-WC sowie im Obergeschoss ein Dusch- und ein weiteres Vollbad. Der Spitzbodenbereich ist gedämmt und bietet ordentlich Staufläche.

Die Einliegerwohnung verfügt über einen großen Wohnraum mit Pantryküche sowie ein Schlafzimmer mit angeschlossenem HTR und einem weiteren Duschbad.

Der Gartenbereich ist aktuell in Haupt- und Einliegerwohnung unterteilt und bietet ebenfalls mehrere Nutzungs- und Abstellmöglichke­iten.

Bei den Fenstern handelt es sich um 3-fach verglaste Kunststofffenster aus dem Baujahr.

Beheizt wird das Objekt über eine Gasbrennwerttherme (Marke „Buderus“, Baujahr 2010, Fußbodenheizung im kompletten Erd- und Obergeschoss), welche auch Warmwasser (Speicher 300l) übernimmt. Eine Photovoltaikanlage ist vorhanden.

Zum Objekt gehört ein Doppelcarport sowie ein weiterer Außenstellplatz, welcher sich vor dem Eingangsbereich befindet.

Ein Energieverbrau­chsausweis (gültig bis 01.12.2035) liegt vor. Der Energiekennwert liegt bei 54 kWh / (m²a), was die Energieeffizi­enzklasse B bedeutet.

Wir freuen uns auf Ihre Kontaktaufnahme!

Lage

Das hier angebotene Ein-/Zweifamilienhaus befindet sich in familienfreun­dlicher und beliebter Lage von Barmstedt am Ende einer verkehrsberuhigten Ringstraße. Die Straße bietet ein ruhiges Umfeld, in dem Kinder noch unbeschwert spielen können.

Kindergarten, Grundschule und Gymnasium sind allesamt fußläufig zu erreichen.

Das Barmstedter Hallen-/Wellenbad ist ebenfalls in wenigen Minuten erreicht. Selbiges gilt für die Innenstadt mit ihrem jährlich stattfindenden Stoppelmarkt. Ansonsten werden Sie sämtliche Läden des täglichen Bedarfs vorfinden. Drogerie, Apotheke, Nahversorger, Fitnessstudio, alles in wenigen Fahrminuten erreicht!

Barmstedt ist mit insgesamt zwei AKN-Stationen ideal an die nächstgrößeren Städte wie Elmshorn und Kaltenkirchen angeschlossen. Die Hansestadt Hamburg erreichen Sie in ca. 45 Fahrminuten (mit Umstieg in Elmshorn). Eine Bushaltestelle („Baumschulenweg“, Linien 6542 und 6544) ist nur einen Katzensprung entfernt.

Daten Energieausweis

Baujahr

2010

Zustand

GEPFLEGT

Energieausweis gültig bis

2035-12-01

Baujahr lt. Energieausweis

2010

Wesentlicher Energieträger

GAS

Energieausweis

Energieverbrauchskennwert

Endenergieverbrauch

54.00

Energieeffizienzklasse

B

Kontakt


Kürzlich verkauft

25541 Brunsbüttel

149.000 €
  • Grundstücksfläche N/A
  • Wohn-Nutzfläche58.46 m2
  • Zimmer2

25370 Seester

425.000 €
  • Grundstücksfläche1122 m2
  • Wohn-Nutzfläche125.13 m2
  • Zimmer2

25337 Elmshorn

199.000 €
  • Grundstücksfläche N/A
  • Wohn-Nutzfläche83.83 m2
  • Zimmer4