RESERVIERT - "Summer Vibes" am Liether Wald!

25336 Elmshorn

Kaufpreis 395.000,00 €

Courtage 3,25 % inkl. Mwst.

Objekt

Die Klarheit und die Familienfreun­dlichkeit sind bereits beim Betreten des Hauses deutlich spürbar.

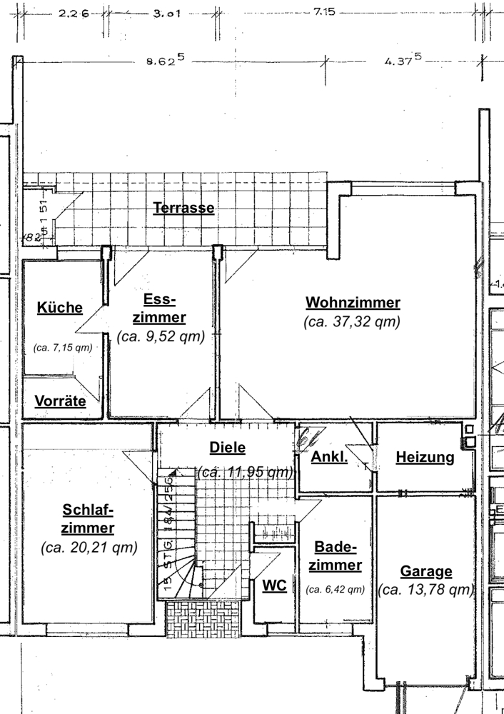
Ein großzügiger Flurbereich lädt sofort ein die abgehenden Zimmer zu erkunden. Das Haus verfügt über insgesamt 6 Zimmer, 2 Bäder zuzüglich eines Gäste-WC´s und einen fantastischen Gartenbereich.

Auf die Terrasse (teilweise überdacht mit einer kleinen, integrierten Abstellkammer) gelangen Sie über den offenen Wohn-/Küchenbereich oder auch das große Wohnzimmer mit ca. 37 m² Wohnfläche. Der offene Küchenbereich sorgt für eine freundliche und gesellige Atmosphäre, während die angeschlossene kleine Abstellkammer eine praktische Lösung zum Verstauen der täglichen Dinge des Lebens griffbereit bietet.

Die großen Fenster und hellen Wandfarben tragen dazu bei, dass die Räume viel natürliches Licht haben und eine angenehme, warme Atmosphäre schaffen. Idealerweise finden Sie im Erdgeschoss ein geräumiges Schlafzimmer und ein Badezimmer vor.

Weitere vier Schlafzimmer im Obergeschoss, ergänzt durch ein weiteres Bad, machen das Familienleben dann endgültig perfekt.

Der über Jahre liebevoll gestaltete Gartenbereich, unter anderem mit zwei Gartenteichen, ist ein perfekter Ort, um den eigenen grünen Daumen bei der Bepflanzung einzusetzen und neue Energie zu tanken. Ob ein gemütlicher Sitzbereich, ein kleines Blumenparadies oder eine kreative Ecke für Kinder – diese Details prägen den Gartenbereich und sorgen für viel Freude!

Die vorhandenen 2-fach und 3-fach Verglasungen sind aus unterschiedlichen Baujahren.

Beim Dach handelt es sich um die erste Ausführung (Betondachsteine). Im Haustechnikraum befindet sich die Gasheizung, Marke „Viessmann Vitodens“, Baujahr ca. 2004.

Insgesamt wurde das Haus laufend gepflegt.

Eine Garage mit einem davorliegenden Carportbereich bietet Schutz für Ihr Auto bzw. weitere praktische Abstellmöglichke­iten.

Wir hoffen wir haben Ihre Neugierde geweckt und freuen uns auf Ihre Kontaktaufnahme.

Lage

Ein idyllisches Wohngebiet in bevorzugter Wohnlage im Süden von Elmshorn. Es handelt sich um ein ruhiges und sonniges Grundstück in einem kleinen Stichweg mit nur 6 Wohnhäusern. Die leicht versetzte Bauweise in Kombination mit einem großzügigen Grundstück sorgt dafür, dass das Reihenhauscharakter weniger stark ausgeprägt ist und das Gesamtbild harmonischer wirkt und mehr Raum für Gestaltungsmöglichke­iten bietet.

Kinder spielen hier noch in ruhiger, verkehrsarmer Nachbarschaft (30er-Zone). In unmittelbarer Nähe befindet sich der Liether Wald. Abschalten, Erholen, Spielen, Joggen, Walken oder einfach die Blumen im Rosengarten genießen – der Liether Wald bietet jedem etwas.

Soziale Einrichtungen wie Schulen, Kindergärten, Ärzte, etc. sind gut zu erreichen. Einkaufsmöglichke­iten für den täglichen Bedarf und eine Apotheke sind ebenfalls in der Nähe gegeben. Die Bushaltestelle Ollnsstraße mitte (Linie 6503/6504) ist nur wenige Gehminuten entfernt.

Die A 23 Richtung HH ist in ca. 10 Minuten mit dem Auto zu erreichen. Auch die Bahnverbindung mit Hamburg ist ideal. Die Fahrzeit mit dem Zug beträgt ca. 25 Minuten.

Daten Energieausweis

Baujahr

1971

Zustand

GEPFLEGT

Energieausweis gültig bis

2035-06-12

Baujahr lt. Energieausweis

1971

Wesentlicher Energieträger

GAS

Energieausweis

Endenergiebedarf

Endenergiebedarf

191.50

Energieeffizienzklasse

F

Kontakt


Kürzlich verkauft

22459 Hamburg

898.000 €
  • Grundstücksfläche1517 m2
  • Wohn-Nutzfläche210 m2
  • Zimmer8

25370 Seester

425.000 €
  • Grundstücksfläche1122 m2
  • Wohn-Nutzfläche125.13 m2
  • Zimmer2

22523 Hamburg

439.000 €
  • Grundstücksfläche929 m2
  • Wohn-Nutzfläche120 m2
  • Zimmer3