Kapitalanlage - Vermietete Dachgeschosswohnung mit PKW-Stellplatz

25335 Elmshorn

Kaufpreis 199.000,00 €

Courtage 3,25 % inkl. MwSt.

Objekt

Die zum Verkauf stehende, derzeit vermietete Eigentumswohnung befindet sich im 2. Obergeschoss eines gepflegten Mehrfamilienhauses.

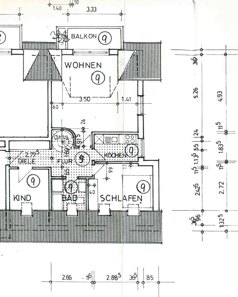
Die Wohnung verfügt über drei Wohnräume, welche derzeit als Schlafzimmer (nicht bebildert), als Wohnzimmer, mit Zugang zum Balkon, und als Büro (nicht bebildert) genutzt werden, sowie das vor ca. neun Jahren sanierte Badezimmer mit Badewanne und den Küchenbereich. Ebenso kann der ausgebaute Spitzbodenbereich, welcher via Wendeltreppe zu erreichen ist, als zusätzliches Zimmer genutzt werden. Das Badezimmer bietet zudem Platz für die Waschmaschine.

Die vorhandene Einbauküche ist aus dem Baujahr, ist allerdings als absolut gepflegt und funktionabel anzusehen.

Vorherrschende Bodenbeläge sind Laminat und Fliesen.

Zur Eigentumswohnung gehört ein Kellerraum sowie ein PKW-Stellplatz.

Das Mietverhältnis mit den aktuellen Mietern besteht seit dem 01.10.2022 und ist ungekündigt. Mietrückstände bestehen nicht. Die aktuelle Monatsnettokal­tmiete beträgt derzeit 790 €. Es ist eine Staffelmiete vereinbart, welche sich alle zwei Jahre um 20 € erhöht.

Das monatlich zu zahlende Wohngeld beträgt aktuell 466 € und beinhaltet auch die Heizkosten sowie die Instandhaltun­gsrücklage. Auf den Mieter umlegbar sind ca. 242 €.

Zur Eigentümergeme­inschaft gehören insgesamt 9 Wohneinheiten. Die aktuelle Instandhaltun­gsrücklage für die Eigentümergeme­inschaft beträgt 101.749,08 € (Stand 31.12.2024).

Beheizt wird das Gesamtobjekt über eine im Jahre 2005 installierte Gaszentralheizung. Die Warmwasseraufbe­reitung läuft über Durchlauferhitzer. Ein Energieverbrau­chsausweis (gültig bis 04.02.2029) liegt vor. Der Energiekennwert liegt bei 105,1 kWh / (m²a), was die Energieeffizi­enzklasse D bedeutet.

Besichtigungen sind nach Rücksprache mit den aktuellen Mietern möglich. Hierfür wird jedoch eine gewisse Vorlaufzeit benötigt. Wir bitten um Verständnis.

Bei Rückfragen stehen wir Ihnen gerne zur Verfügung. Wir freuen uns auf Ihre Kontaktaufnahme!

Lage

Die angebotene Eigentumswohnung befindet sich in sehr beliebter Lage von Elmshorn in unmittelbarer Nähe zum Krückaupark, welcher durchaus für die eine oder andere Joggingrunde oder Gassirunde geeignet ist.

Die umliegende Bebauung ist geprägt durch herrschaftliche Villen sowie Einfamilienhäuser.

Bushaltestellen (Haltestellen „Moltkestraße“ sowie „Kaltenweide Mitte“ – Linien 6503, 6504 und 6507) sind fußläufig erreichbar, was ebenfalls für den Elmshorner Bahnhof gilt.

Der Autobahnzubringer ist in ca. sieben Fahrminuten erreicht.

Daten Energieausweis

Baujahr

1984

Zustand

GEPFLEGT

Energieausweis gültig bis

2029-02-04

Baujahr lt. Energieausweis

1984

Wesentlicher Energieträger

GAS

Energieausweis

Energieverbrauchskennwert

Endenergieverbrauch

105.10

Energieeffizienzklasse

D

Kontakt


Kürzlich verkauft

25335 Elmshorn

299.000 €
  • Grundstücksfläche500 m2
  • Wohn-Nutzfläche100.73 m2
  • Zimmer3

22523 Hamburg

439.000 €
  • Grundstücksfläche929 m2
  • Wohn-Nutzfläche120 m2
  • Zimmer3

25370 Seester

425.000 €
  • Grundstücksfläche1122 m2
  • Wohn-Nutzfläche125.13 m2
  • Zimmer2