VERKAUFT - Walmdachhaus mit ausgebautem Dachgeschoss und Gartenparadies

25337 Kölln-Reisiek

Kaufpreis 369.000,00 €

Courtage 3,25 % inkl. Mwst.

Objekt

Dieses Einfamilienhaus wurde im Jahr 1968 in massiver Bauweise mit einem Teilkeller errichtet und befindet sich in einem gepflegten Zustand. Auf zwei Etagen bietet es ausreichend Platz für Ihre individuellen Wohnideen. Die Wohn-/Nutzfläche wurde zunächst auf ca. 150 m² aufgrund der vorliegenden Bauzeichnungen vom Architektenbüro geschätzt, da noch keine offizielle Wohn-/Nutzflächenau­fstellung vorliegt. Diese ist beim zuständigen Bauamt angefragt.

Das Erdgeschoss ist aufgeteilt in einen großzügigen Wohn-/Esszimmerbereich (zweigeteilt) mit einem wintergartenähnlichen Anbau, eine Küche, ein Arbeitszimmer, ein Schlafzimmer, ein Bad mit kleiner Eckwanne und eine geräumige Diele. Der wintergartenähnliche Anbau erweitert den Wohnbereich und sorgt für zusätzliche Lichtdurchflutung. Ein Kamin und stilvolles Stäbchenparkett verleihen dem Wohnzimmer eine warme und einladende Atmosphäre. Die Küche befindet sich in einem renovierungsbedürfti­gen Zustand. Direkt aus der Küche betritt man die sonnige Terrasse mit Ausblick in den gepflegten Garten. Die Terrasse ist überdacht.

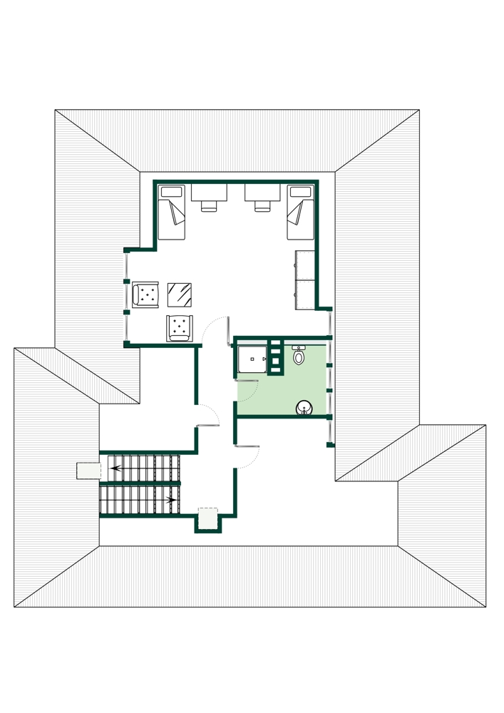
Im Dachgeschoss befinden sich ein Schlafraum, ein Badezimmer mit Dusche, ein Abstellraum und eine Kleiderkammer. Der Bereich eignet sich ideal als Rückzugsort für einen Jugendlichen. Die Bodenbeläge bestehen aus Laminat und Fliesen.

Das Haus ist teilunterkellert. Der Keller verfügt über eine angenehme Stehhöhe von ca. 2,10 m und bietet ausreichend Abstellfläche. Beheizt wird das Haus über eine Gasbrennwerthe­izung, Bj. 2014. Ein gemauertes Werkstatthaus mit einem weitläufigen Holzlagerunterstand ergänzt das Angebot im Gartenbereich. Der Garten ist ansprechend und äußerst gepflegt angelegt. Strukturierte Wege und ausgewählte Bepflanzung ergänzt mit Bäumen und Sträuchern sorgen für Sichtschutz und schaffen wunderschöne Bereiche zum Entspannen.

Für das Fahrzeug steht ein Carport zur Verfügung. Zusätzlich befindet sich ein weiterer Stellplatz direkt am Haus.

Gern beantworten wir weitere Fragen.

Lage

Die Gemeinde Kölln-Reisiek mit seinen knapp 3.400 Einwohnern grenzt unmittelbar an die Stadt Elmshorn und wird von Jahr zu Jahr attraktiver. Gerade für junge Familien, die dem Trubel der Stadt entkommen wollen, bietet die Gemeinde ein vielfältiges Angebot. Es handelt sich um eine bevorzugte Wohnlage in Kölln-Reisiek. Wer die Natur liebt, findet diese in der unmittelbaren Umgebung.

Die Gemeinde Kölln-Reisiek grenzt unmittelbar an Elmshorn. Kölln-Reisiek bietet Ihnen eine Grundschule, Sportstätten, einen Kindergarten und eine Bäckerei. Weiterführende Schulen aller Art inklusive Gesamtschule und der privaten Leibnitz-Schule befinden sich nur wenige Minuten entfernt in Elmshorn, wo Ihnen auch alle weiteren Einkaufsmöglichke­iten zur Verfügung stehen. Zur Innenstadt Elmshorn besteht eine Busverbindung (Linie 6500). Eine Bushaltestelle ist nur einen Katzensprung entfernt. Der Autobahnanschluss A 23 ist in ca. 5 Minuten erreicht.

Daten Energieausweis

Baujahr

1968

Zustand

GEPFLEGT

Energieausweis gültig bis

2033-08-21

Baujahr lt. Energieausweis

1968

Wesentlicher Energieträger

GAS

Energieausweis

Endenergiebedarf

Endenergiebedarf

241.10

Energieeffizienzklasse

G

Kontakt


Kürzlich verkauft

25337 Kölln-Reisiek

369.000 €
  • Grundstücksfläche977 m2
  • Wohn-Nutzfläche150 m2
  • Zimmer5

25370 Seester

425.000 €
  • Grundstücksfläche1122 m2
  • Wohn-Nutzfläche125.13 m2
  • Zimmer2

25336 Elmshorn

245.000 €
  • Grundstücksfläche785 m2
  • Wohn-Nutzfläche82.28 m2
  • Zimmer4