PROVISIONSFREI - Der Liether Wald als Nachbar!

25336 Elmshorn

Kaufpreis 309.000,00 €

Objekt

  • FESTPREIS * PROVISIONSFREI *

Das Einfamilienhaus befindet sich in einem stark renovierungsbedürfti­gen Allgemeinzustand.

Das voll unterkellerte Objekt verfügt über insgesamt vier Zimmer und einem großen Gartenbereich, welcher aktuell eher als „wild“ zu bezeichnen ist.

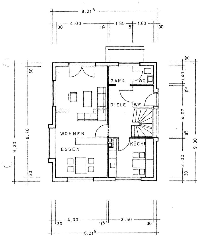
Im Erdgeschoss werden Sie das Wohnzimmer, von dem Sie Zugang zur Terrasse haben, den Küchenbereich sowie ein Gäste-WC vorfinden. Der Wohnbereich ist rot gefliest und lichtdurchflutet. Via Holztreppe gelangen Sie in das Obergeschoss. Hier befinden sich drei Wohnräume, welche teils mit Teppich und teils mit Laminat ausgelegt sind. Das Badezimmer ist mit einer Dusche und einer Badewanne ausgestattet und mit weißen Boden- und hellblauen Wandfliesen versehen. Alles in allem versprüht das Haus den „Charme“ der 70er-Jahre.

Beheizt wird das Objekt über eine Gasbrennwerttherme (Marke „Viessmann“, Baujahr ca. 2016). Die vorhandene 3-fach-Verglasung ist aus den 80er-Jahren.

Der Kellerbereich ist nass und voller Unrat. Dieser müsste definitiv erst trocken gelegt werden, um eine weitere Nutzung zu gewährleisten.

  • Das Objekt wird im aktuellen Zustand veräußert.

Ein Energiebedarfsau­sweis (gültig bis 11.12.2034) liegt vor. Der Energiekennwert liegt bei 428,4 kWh / (m²a). Energieeffizi­enzklasse: H

Sollten Sie Interesse an einem unverbindlichen Begehungstermin haben, dann freuen wir uns über Ihre Kontaktaufnahme. Auch beraten wir Sie gerne über die Möglichkeiten einer Neubebauung des Grundstücks.

Lage

Das hier angebotene Einfamilienhaus befindet sich in einer sehr beliebten Wohngegend von Elmshorn, da sie sich in unmittelbarer Nähe zum Liether Wald befindet, die Innenstadt aber dennoch fußläufig erreichbar ist. Im Liether Gehölz finden Sie zahlreiche Möglichkeiten der Freizeitgestaltung. Ob gemütliches Spazierengehen, Radfahren oder Joggen – das Wegenetz bietet für jeden etwas.

Elmshorn mit seinen etwas über 50.000 Einwohnern weiß mit einem breit gefächterten Schul- und Freizeitangebot zu überzeugen. Grundschule und Gemeinschaftsschule befinden sich nur wenige Radminuten entfernt. Die beiden Gymnasien sind ebenfalls problemlos mit dem Fahrrad zu erreichen.

In direkter Umgebung befinden sich ein Nahversorger (Edeka), eine beliebte Fleischerei, eine Apotheke sowie diverse Ärzte.

Der Elmshorner Bahnhof ist zu Fuß in ca. 15 Minuten erreicht. Von hier aus haben Sie beste Anbindung an die Hansestadt Hamburg sowie den Norden von Schleswig-Holstein.

Diverse Bushaltestellten (Linien 6503 und 6504) sind ebenfalls nur einen Katzensprung entfernt, so dass Sie ideale Anbindung an das Elmshorner Verkehrsnetz haben.

Der Autobahnzubringer „Elmshorn“ ist ca. 10 Autominuten entfernt.

Daten Energieausweis

Baujahr

1975

Zustand

TEIL_VOLLRENOVIERUNGSBED

Energieausweis gültig bis

2034-12-11

Baujahr lt. Energieausweis

1975

Wesentlicher Energieträger

GAS

Energieausweis

Endenergiebedarf

Endenergiebedarf

428.40

Energieeffizienzklasse

H

Kontakt


Kürzlich verkauft

22523 Hamburg

439.000 €
  • Grundstücksfläche929 m2
  • Wohn-Nutzfläche120 m2
  • Zimmer3

25370 Seester

425.000 €
  • Grundstücksfläche1122 m2
  • Wohn-Nutzfläche125.13 m2
  • Zimmer2

25337 Kölln-Reisiek

369.000 €
  • Grundstücksfläche977 m2
  • Wohn-Nutzfläche150 m2
  • Zimmer5