Sanierte und bezugsfreie 1-Zimmer-Wohnung zur Selbstnutzung oder als Anlage - für Pendler geeignet!

22089 Hamburg

Kaufpreis 179.000,00 €

Courtage 3,25 % inkl. MwSt.

Objekt

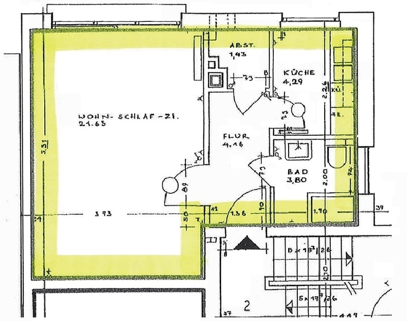
Die angebotene Eigentumswohnung befindet sich im Erdgeschoss eines 1968 errichteten Mehrfamilienhauses bestehend aus insgesamt 6 Wohneinheiten und ist ob seines Grundrisses ideal für Singles für Kapitalanleger bestens geeignet.

Durch eine umfangreiche Renovierung vor ca. drei Jahren befindet sich die Wohnung in einem soliden Allgemeinzustand. So wurde beispielsweise das Duschbad in Marmoroptik (mit Waschmaschine­nanschluss) komplett entkernt (inkl. Steigleitungen) und die Bodenbeläge erneuert. Ebenfalls wurde eine neue Trennwand zur Küche gezogen.

Eine Einbauküche ist derzeit nicht installiert.

Der Wohnbereich ist mit Laminat ausgelegt und bietet einen Austritt in den gemeinschaftlichen Gartenbereich, welcher hauptsächlich durch diese Wohneinheit genutzt wird. Sondernutzungsrechte sind diesbezüglich nicht vereinbart.

Bei den Fenstern handelt es sich um doppelt verglaste Kunststofffenster mit Schallschutz aus dem Jahr 2014, welche im Wohnzimmer ebenfalls mit elektrischen Rollläden versehen sind.

Das monatlich zu zahlende Wohngeld beträgt aktuell 278 € und beinhaltet auch die Heizkosten sowie die Instandhaltun­gsrücklage.

Zur Eigentümergeme­inschaft gehören insgesamt 6 Wohneinheiten.

Beheizt wird das Gesamtobjekt über eine im Jahre 2015 installierte Gaszentralheizung (Marke „Wolf“), welche auch die Warmwasseraufbe­reitung übernimmt. Ein Energieverbrau­chsausweis (gültig bis 31.08.2026) liegt vor. Der Energiekennwert liegt bei 246,7 kWh / (m²a), was die Energieeffizi­enzklasse G bedeutet.

Im Kellergeschoss hat jede Wohneinheit ihr eigenes Kellerabteil als Abstellraum. Des Weiteren gibt es einen gemeinschaftlich nutzbaren Waschraum und einen Trockenkeller.

Ein PKW-Stellplatz ist nicht vorhanden.

Sollten Sie an einem unverbindlichen Besichtigungstermin interessiert sein, dann freuen wir uns auf Ihre Kontaktaufnahme!

Lage

Die Wohnung liegt sehr verkehrsgünstig in Hamburg Hamm an der Grenze zum Stadtteil Eilbek (Bezirk Wandsbek). Die S-Bahn-Haltestellen „Landwehr“ und „Hasselbrook“ (Linie S1) sowie die U-Bahn-Haltestelle „Ritterstraße“ (Linie U1) sind fußläufig in wenigen Gehminuten zu erreichen, so dass eine gute Anbindung an die Hamburger Innenstadt gegeben ist. Selbiges gilt für die Bushaltestelle „Hirschgraben“ (Linie 530).

Einkaufsmöglichke­iten wie ein nahe gelegener Nahversorger in unmittelbarer Nähe der S-Bahn-Station „Hasselbrook“ sind fußläufig zu erreichen. Die Wandsbeker Chaussee mit dem „Quarree Wandsbek“ sei hier zu nennen.

Daten Energieausweis

Baujahr

1968

Zustand

TEIL_VOLLSANIERT

Energieausweis gültig bis

2026-08-31

Baujahr lt. Energieausweis

1968

Wesentlicher Energieträger

GAS

Energieausweis

Energieverbrauchskennwert

Endenergieverbrauch

246.70

Energieeffizienzklasse

G

Kontakt


Kürzlich verkauft

25337 Elmshorn

199.000 €
  • Grundstücksfläche N/A
  • Wohn-Nutzfläche83.83 m2
  • Zimmer4

25337 Kölln-Reisiek

369.000 €
  • Grundstücksfläche977 m2
  • Wohn-Nutzfläche150 m2
  • Zimmer5

25541 Brunsbüttel

149.000 €
  • Grundstücksfläche N/A
  • Wohn-Nutzfläche58.46 m2
  • Zimmer2