Endetage mit großem Balkon - Altbauwohnung - gut vermietet

20251 Hamburg / Eppendorf

Kaufpreis 469.000,00 €

Courtage 3,57% inkl. Mwst.

Objekt

Die Außenansicht ist geprägt durch einen klaren Architekturstil der 30-er Jahre. Hohe Decken und große Fenster lassen viel Tageslicht in die 2-Zimmer-Wohnung, was zu einer hellen Atmosphäre beiträgt.

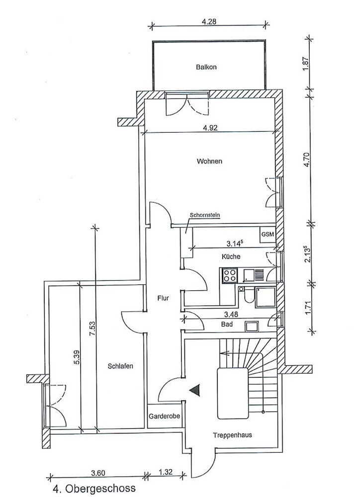
Im Jahr 2014 wurden zahlreiche Renovierungen durchgeführt, u.a. wurde der sonnige Balkon mit ca. 8 m² hervorgebracht. Die ca. 70 m² Wohn-/Nutzfläche verteilen sich auf ein großes Wohnzimmer mit dem Zugang zum Südwest-Balkon, eine Küche, den Flurbereich, das Schlafzimmer, ein Duschbad mit WC und Fenster. Die genaue Aufteilung entnehmen Sie bitte dem beigefügten Grundriss. Insgesamt ist die Altbauwohnung in einem gepflegten Zustand. Alte Holzdielen kann man in allen Zimmern wiederfinden.

Eine eigene Gastherme in der Wohnung (Baujahr ca. 2014, Marke Junkers) sorgt auch für die Warmwasserver­sorgung. Zur Wohnung gehört ein Kellerraum. Die Eigentümergeme­inschaft besteht aus insgesamt 56 Einheiten. Es besteht ein unbefristetes Mietverhältnis an eine Dame seit 2015. Die derzeitige Jahresnettokal­tmiete beträgt seit Mai 2025 13.200 €. Monatlich beträgt das Hausgeld (inkl. Rücklage, ohne Heizkosten) derzeit 173 €.

Hervorzuheben ist die im Jahr 2014 stattgefundene Modernisierung:

  • Erneuerung der Fenster
  • neue Gastherme
  • neue Innentüren
  • Balkonanbau

Bei eventuell aufkommenden Rückfragen oder einem potenziellen Besichtigungstermin stehen wir Ihnen selbstverständlich gern zur Verfügung. Bitte bedenken Sie, dass Besichtigungster­mine mit der Mieterin abgestimmt werden müssen.

Lage

In einer ruhigen Eppendorfer Seitenstraße befindet sich die Wohnung im 4. Obergeschoss. Eppendorf bietet eine hervorragende Mischung aus urbanem Leben und naturnahen Erholungsgebieten. In der Nähe sind mehrere Parks und Grünflächen, die zum Entspannen und Verweilen einladen.

Die Straßen sind gesäumt von Cafés, Restaurants, Boutiquen und kleinen Geschäften, die eine einladende Atmosphäre schaffen. Besonders beliebt sind die Eppendorfer Landstraße und die umliegenden Straßen, die zahlreiche Einkaufsmöglichke­iten und gastronomische Angebote bieten. Das UKE ist fußläufig erreichbar. Eppendorf ist auch für seine gute Anbindung an den öffentlichen Nahverkehr bekannt, was es einfach macht, die Innenstadt und andere Stadtteile zu erreichen.

Daten Energieausweis

Baujahr

1928

Zustand

GEPFLEGT

Energieausweis gültig bis

2028-06-23

Baujahr lt. Energieausweis

1928

Wesentlicher Energieträger

GAS

Energieausweis

Endenergiebedarf

Endenergiebedarf

177.00

Energieeffizienzklasse

F

Kontakt


Kürzlich verkauft

25336 Elmshorn

245.000 €
  • Grundstücksfläche785 m2
  • Wohn-Nutzfläche82.28 m2
  • Zimmer4

25541 Brunsbüttel

149.000 €
  • Grundstücksfläche N/A
  • Wohn-Nutzfläche58.46 m2
  • Zimmer2

22459 Hamburg

898.000 €
  • Grundstücksfläche1517 m2
  • Wohn-Nutzfläche210 m2
  • Zimmer8